We Service America's Real Estate & Design Industries
Accurate Floor Plans | Square Footage Calculations | CAD Files | Photography | Exterior & Interior Matterport Tours | Existing Conditions Plans
National Floor Plans & Photography
CELEBRATING 20 YEARS IN BUSINESS!
All Services
The NFPP Difference
Precision & Experience
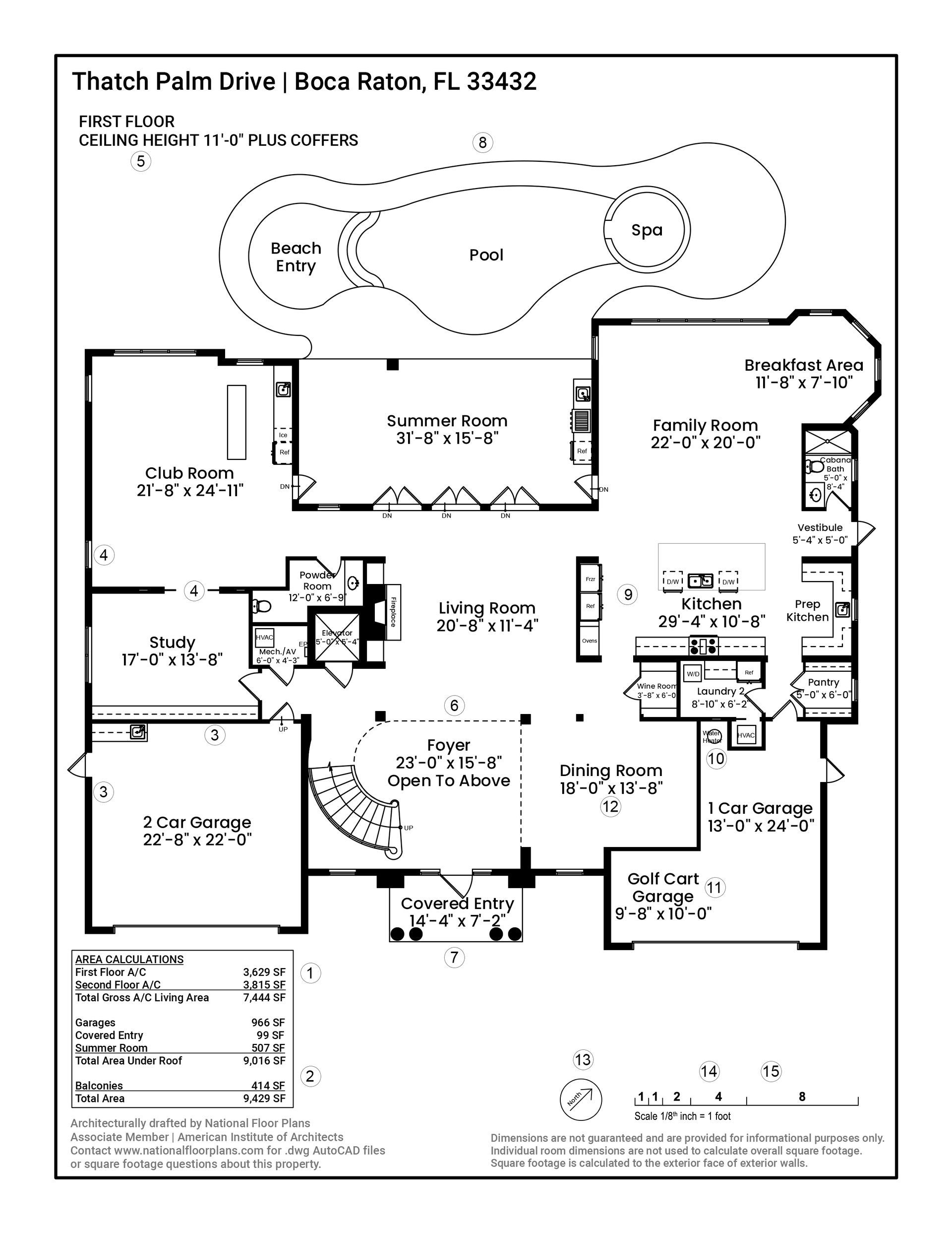
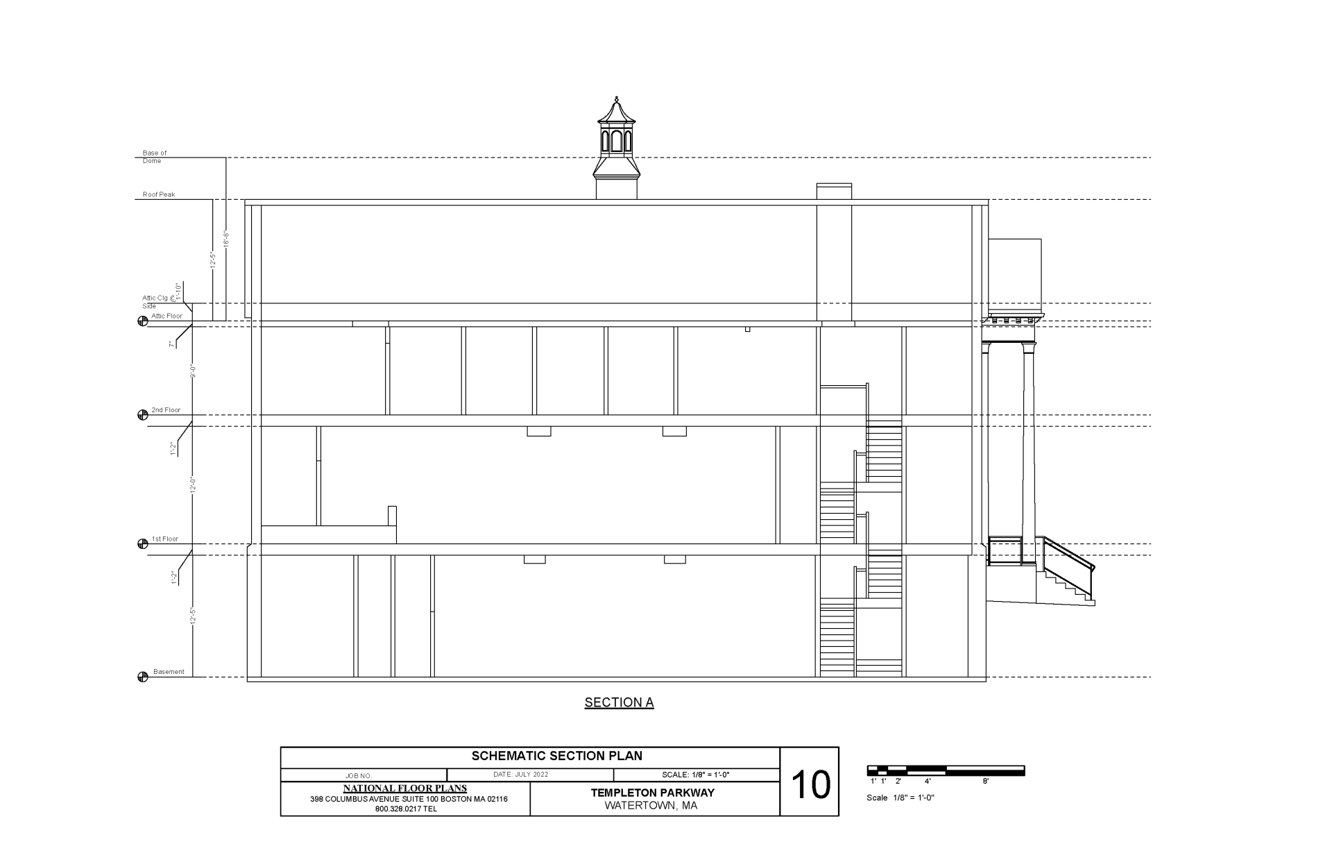
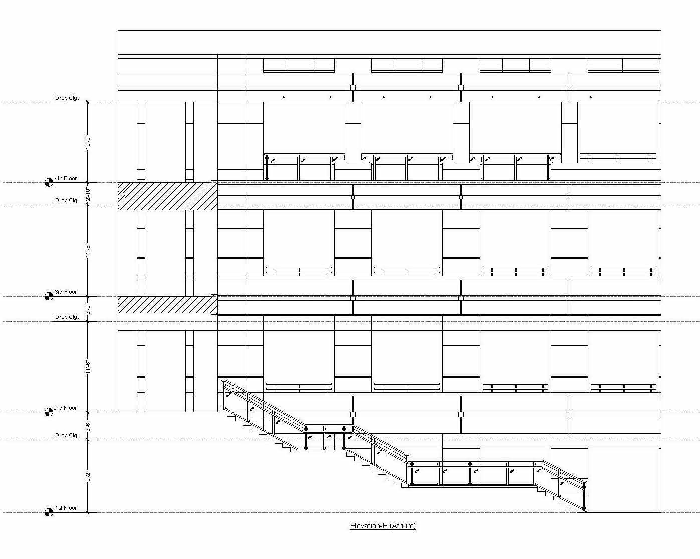
National Floor Plans & Photography, founded in 2004, focuses on architectural quality floor plans. Real estate agents rely on our floor plans and square footage calculations to accurately determine property values. Architects and Interior Designers rely on our existing conditions plans as a basis for their design work.
Clients call us because we are the best. We offer the greatest value for services rendered. We help protect investments and save deals by explaining your square footage, in detail, living and non-living areas.
Accurate Square Footage
When determining how to measure the square footage of a property, it may come as a surprise that the real estate community does not follow a national standard, even though one exists. National Floor Plans & Photography follows the American National Standards Institute’s (ANSI) guidelines for calculating square footage, giving you the most accurate and reliable square footage information.
As of April 1, 2022, Fannie Mae began requiring the ANSI home measurement standards for all appraisals of single family homes. Since the standard is not used universally, you may see discrepancies between public records and square footage determined by an appraiser. Let NFPP determine your ANSI square footage prior to listing to avoid any square footage surprises during the appraisal process.
42,000,000
Sq.Ft. Measured
160,570
Photos Taken
20
Years in Business
Easy Online Scheduling
Available 24/7
1. Choose your services
Local and Nationwide services available
2. Select preferred date & time
Next day rush services available
3. Enter property address
Confirm appointment
4. Services rendered
Fast Turnaround
5. Client Portal updated
Access all property materials anytime


















